466AP Misano Santa Monica Ampio Trilocale con mansarda abbinata garage e cantina

Via Niccolò Paganini, Misano Adriatico, Province of Rimini, Italy
€ 295.000
Appartamenti
2 Camere
2 Bagni
2 Posti Auto
163 m²

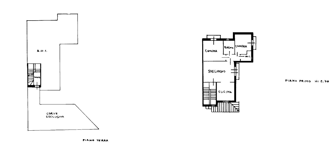
Misano zona residenziale Santa Monica proponiamo in vendita un ampio appartamento trilocale con ingresso dalla corte privata a piano terra. L’immobile si distingue per gli ambienti luminosi grazie alle grandi finestre che permettono alla luce naturale di avvolgere ogni stanza.

L’ingresso al primo piano si apre su una spaziosa zona living dal design moderno con pavimenti in parquet, pareti chiare ed elementi decorativi ricercati come specchiere artistiche e dettagli d’arredo contemporanei. Il soggiorno è dotato di un comodo divano angolare ideale per momenti di relax o convivialità davanti all’ampio televisore. La cucina abitabile separata presenta arredi colorati moderni, piano cottura completo e spazio dedicato al pranzo illuminato da doppie finestre.

La disposizione interna garantisce privacy tra la zona giorno e quella notte composta da 2 camere da letto e 2 bagni.
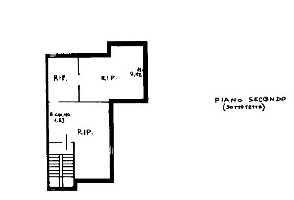
Completano la proprietà un sottotetto suddiviso in zona giorno, camera da letto e spazioso bagno con finestra. Garage doppio e spaziosa cantina con bocca di lupo.

Non lasciarti sfuggire questa opportunità unica! Per maggiori informazioni o fissare una visita contatta subito la nostra agenzia: saremo lieti di accompagnarti nella scoperta della tua nuova casa.

Documenti - Planimetrie

Piano Terra e Primo Download
Piano Sottotetto Download
Garage2 Download
Garage Download
Cantina Download

Dettagli immobile:

RIF Immobile: 466AP
Tipologia: Appartamenti
Contratto: Vendita
Camere: 2
Bagni: 2
Posti auto: 2
Superficie: 163 m²
Anno costruzione: 2001

Ulteriori caratteristiche:

Certificazione Energetica: In corso di Definizione

Comfort:

  • Allarme
  • Aria Condizionata
  • aria condizionata canalizzata
  • arredato
  • arredo generico
  • Ascensore
  • Camino
  • Cancello Elettrico
  • cappotto termico
  • cassaforte
  • filodiffusione
  • Idromassaggio
  • impianto aspirazione centralizzata
  • ingresso indipendente
  • Internet
  • pavimenti in legno
  • Piscina
  • Porta Blindata
  • predisposizione aria condizionata
  • predisposizione impianto allarme
  • Riscald. Autonomo
  • Riscald. Pavimento
  • tapparelle elettriche
  • ventilazione meccanica
  • videocitofono
  • zanzariere

Indirizzo Immobile:

Supermarket
Stazione
Ristorante
Ospedale
Scuola
Parchi
Via Niccolò Paganini, Misano Adriatico, Province of Rimini, Italy

Visualizzazioni immobile: